Bài tập thực hành triển khai bản vẽ AutoCAD cho mặt đứng kiến trúc với 5 bước siêu đơn giản, có tặng kèm hồ sơ thiết kế cực hay. Đừng bỏ lỡ nhé các bạn ơi.
Ở bài viết trước, chúng ta đã cùng tìm hiểu về việc dựng bản vẽ mặt bằng kiến trúc. Bây giờ trước khi đi thực hiện bản vẽ mặt đứng kiến trúc thì chúng ta cần phân biệt một chút về 2 khái niệm này:
Bản vẽ mặt đứng kiến trúc có thể triển khai qua 5 bước rất đơn giản. Trước khi bắt tay vào thực hành thì các bạn hãy tải file tài liệu đính kèm của bài viết về nhé. Đó là hồ sơ thiết kế chúng mình gửi tặng miễn phí, có bao gồm hình vẽ mẫu với thông số cụ thể để các bạn tham khảo khi thực hành.
XEM NHANH BÀI VIẾT
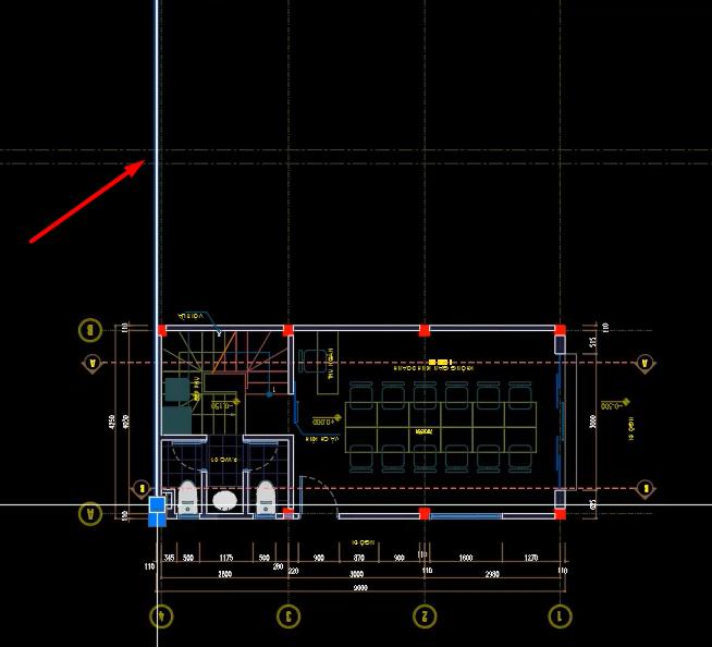
Hình ảnh dưới đây là phương nhìn mà chúng mình dự định sẽ vẽ mặt đứng, các bạn có thể tham khảo nhé:

Đầu tiên các bạn dùng lệnh Line vẽ ra một đường thẳng nằm ngang làm cốt cao độ của tầng 4. Lúc này các bạn có thể thấy số liệu trong bản vẽ mẫu chúng mình để ở file đính kèm bài viết thì khoảng cách giữa tầng 1 và tầng 2 là 3400 (tương đương 3,4 mét trong thực tế). Do đó, các bạn offset đường line này lên các khoảng là 3400 để tạo cốt cao độ cho tầng 2. Từ tầng 2 đến tầng 3 thì khoảng cách là 3200, các tầng sau cũng cách nhau đúng bằng khoảng này. Chỉ riêng khoảng cách từ tầng cuối đến mới chỉ là 300. Các bạn chỉ cần offset cốt cao độ lên theo số liệu trong bản vẽ mẫu là sẽ ra được kết quả như sau:

Sau khi vẽ xong các bạn có thể quét chuột chọn tất cả đối tượng và chuyển nó sang layer chuyên dùng để vẽ trục. Hoặc nếu bạn đang thao tác ngay trên file đính kèm mà chúng mình gửi tặng thì các bạn có thể làm như sau:
Nhập lệnh MI vào dòng lệnh Command Line => bấm phím cách để truy cập lệnh => tích chuột chọn vào một trục bất kỳ trong bản vẽ mẫu => quét chuột chọn các đường line vừa vẽ ra để làm cốt cao độ => bấm Esc để thoát lệnh là các bạn sẽ thấy tất cả đường line vừa vẽ đều đã chuyển sang layer trục giống bản vẽ mẫu.

Bây giờ chúng ta sẽ tiến hành dựng lưới trục để tạo mặt đứng. Các bạn lưu ý là tùy vào góc nhìn mà chúng ta định triển khai bản vẽ ban đầu thì lưới trục dựng ra sẽ khác nhau. Trước hết các bạn dùng lệnh CO và copy bản vẽ hoàn chỉnh ở bước cuối trong file đính kèm ra nhé.
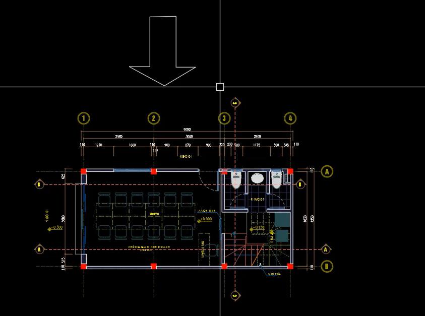
Sau đó các bạn dùng lệnh Polyline vẽ ra một mũi tên như của chúng mình ở dưới đây để đánh dấu cho góc nhìn:

Các bạn chú ý là chúng ta triển khai bản vẽ mặt đứng theo góc nhìn nào thì sẽ xoay bản vẽ sao cho mũi tên quay lên trên thì sẽ xác định được đúng góc. Để xoay thì bạn quét chuột chọn toàn bộ phần bản vẽ mới copy và cả hình mũi tên vừa vẽ => dùng lệnh RO để xoay => tích vào một điểm trong bản vẽ => bấm phím F8 để bật chế độ Ortho Mode, khi đó bản vẽ sẽ xoay từng góc 90 độ => xoay đến khi bạn thấy mũi tên chỉ lên trên thì thả ra và thoát lệnh.

Sau khi xoay xong thì các bạn đặt bản vẽ ở ngay phía dưới phần cốt cao độ đã vẽ. Tiếp theo dùng lệnh S để kéo 4 trục được đánh số 1,2,3,4 lên đủ cắt hết qua cốt cao độ là lưới trục đã được hình thành:

Xem thêm: 9 lệnh vẽ đối tượng hình học bạn cần biết trong AutoCAD
Bây giờ chúng ta cần dựng được các đường dóng để biết được đâu là nét thấy trên bản vẽ AutoCAD cho mặt đứng kiến trúc. Trước hết các bạn offset cốt cao độ của tầng 1 xuống một khoảng là 300 theo bản vẽ mẫu. Sau đó chúng ta có thể tạo đường dóng bằng lệnh Line, Polyline hoặc lệnh Xline (lệnh tắt là XL). Đó là các lệnh mà chúng mình đã giới thiệu trước đây. Ngoài ra, còn có một lệnh khác để dựng đường dóng rất tiện lợi là lệnh RAY. Công dụng của lệnh này là tạo ra một tia có gốc là điểm bạn chọn và đi thẳng theo một phương cụ thể không giới hạn:

Lệnh RAY thì các bạn cũng nhập vào dòng lệnh sử dụng như bình thường nhưng sẽ tích và 2 điểm nằm trên đường thẳng của tia đó để AutoCAD nhận diện được nên vẽ tia ở đâu. Sau đó bạn sẽ thấy có một tia được vẽ ra như thế này:

Sau đó các bạn đổi màu cho tia sang một màu nổi bật để cho dễ nhận diện. Để tạo thêm nhiều tia khác thì các bạn chỉ cần dùng lệnh CO và chọn điểm đặt chỗ có nét thấy tiếp theo trên bản vẽ mẫu là được.

Xem thêm: 19 lệnh Modifying Commands hiệu chỉnh đối tượng hình học AutoCAD (Phần 1)
Các bạn có thể phóng to bản vẽ mẫu lên nhìn kỹ thì sẽ thấy được phía trên các cánh cửa của tầng 1 sẽ có dầm. Để vẽ được dầm cho bản vẽ thì các bạn dùng lệnh Line vẽ ra một đường cắt ngang các đường dóng. Sau đó offset nó xuống một khoảng 300. Từ đường vừa được offset ra thì lại dùng lệnh offset tiếp với khoảng cách 700 thì chúng ta sẽ có được dầm. Đường này có tác dụng giúp bạn căn được nên vẽ cửa ở bước 4 đến đâu.

Những số liệu này là chúng mình sử dụng lệnh DI hay còn gọi là lệnh dim để đo trên bản vẽ mẫu rồi vẽ ra. Các bạn cũng nên thực hiện bước đo nháp bằng lệnh DI này để ghi nhớ lệnh nhé.
Xem thêm: 19 lệnh Modifying Commands hiệu chỉnh đối tượng hình học AutoCAD (Phần 2)
Về cửa, các bạn có thể dựa theo bản vẽ mẫu để vẽ được hình dạng của khung cửa. Trong đó cửa chính thì là hình chữ nhật còn cửa sổ thì là hình vuông. Bạn sử dụng lệnh REC để vẽ khung cửa nhé. Hãy nhớ là đặt cửa ở bên dưới dầm ở bước 3. Sau khi vẽ xong thì kéo mép trên của cửa chạm vào được căn được tạo ra ở bước 3.

Sau khi hoàn thành việc vẽ khung cửa thì bạn xóa đường căn, xóa các đường dóng không cần thiết đi nữa là chúng ta thu được kết quả như sau:

Xem thêm: Cách thiết lập Textstyle cho đúng và đẹp để viết chữ trong AutoCAD
Làm xong đến bước 4 là các bạn đã dựng xong mặt đứng của tầng 1. Các mặt bằng từ tầng 2 trở lên đã có sẵn trong file đính kèm, các bạn chỉ cần kết hợp 2 tổ hợp phím Ctrl + Shift + C và Ctrl + Shift + V để copy & paste sang phần bản vẽ đang thực hành. Sau đó các bạn xoay bản vẽ, tạo đường dóng và tiếp tục vẽ theo mẫu.
Sau đó các bạn sẽ thu được bản vẽ mặt đứng cơ bản như thế này:

Tiếp theo, các bạn lấy mở thư viện blocks mà chúng mình đã gửi tặng trước đây, lấy ra các block cửa phù hợp để đặt vào bản vẽ.

Các phần thêm text, thêm đường đo kích thước, tạo nét hatch thì chúng ta đã từng tìm hiểu rất kỹ ở các bài viết trước rồi. Ở đây các bạn có thể tự thực hành để ghi nhớ lệnh tốt hơn nhé. Các bạn chỉ cần lưu ý đến tỷ lệ bản vẽ khi thiết lập textstyle và dimstyle là được. Các bạn cứ tham khảo và làm theo hình mẫu trong file đính kèm là được nhé. Hình ảnh dưới đây là kết quả cuối cùng mà các bạn thu được:

Xem thêm: Hướng dẫn cách chuẩn nhất để thiết lập Dimstyle trong AutoCAD
Như vậy, chúng ta đã thực hành xong phần dựng mặt đứng kiến trúc bằng các lệnh vẽ trong AutoCAD và một số lệnh hiệu chỉnh. Để được học kiến thức AutoCAD bài bản, chuyên sâu và làm nhiều bài tập thực hành hơn các bạn hãy tham gia vào khóa học Tuyệt đỉnh AutoCAD của Gitiho:
Đây là khóa học được giảng dạy bởi ThS. Vũ Minh Hoàn - kỹ sư có hơn 10 năm kinh nghiệm trong lĩnh vực xây dựng. Khóa học phù hợp với cả những bạn mới bắt đầu học AutoCAD, chưa biết gì về phần mềm này. Những bạn đã có kiến thức về AutoCAD cũng có thể học để hệ thống lại đồng thời nâng cao kỹ năng làm việc với CAD. Hệ thống bài giảng được sắp xếp theo lộ trình từ cơ bản đến nâng cao theo 4 giai đoạn là:
Hoàn thành khóa học, bạn có thể làm việc một cách chủ động với phần mềm AutoCAD. Các bạn sẽ rèn được thói quen tư duy là khi nào thì dùng lệnh nào, công cụ nào là tối ưu nhất mà không cần phải ngồi tìm kiểm trên Google. Thành thạo AutoCAD sẽ giúp các bạn sinh viên làm bài tập lớn, đồ án thuận lợi hơn; người đã đi làm thì có thể nâng cao tốc độ công việc, mở ra nhiều cơ hội phát triển mới. Chúc các bạn thành công!
Tài liệu kèm theo bài viết